Service area

 服务领域

当前位置 > 首页 > 建筑工程
1601350316(1)
1601350316(2)
1601350316(3)
1601350316(4)
1601350316(5)
1601350316(6)
1601350316
1601350316(1)
1601350316(2)
1601350316(3)
1601350316(4)
1601350316(5)
1601350316(6)
1601350316
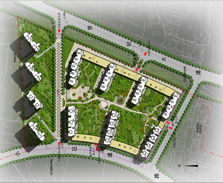
新疆喀什阳光城(一期)

    项目概况:该项目位于新疆维吾尔自治区喀什市,占地440亩,建筑风格为新疆喀什当地风格,建成后将成为喀什东区的“地标”。
  建设规模:总建筑面积23万㎡

  建筑层数分别为32层、18层、11层

联系方式
凯发k8天生赢家一触即发EEECC

凯发k8天生赢家一触即发EEECC

电话:028-86672651

传真:028-86672652

邮箱:zhxc@eeeccl.com

地址:中国·四川省·四川省成都市锦江区东大街97号1栋1单元

法律声明 | 常见问题 | 员工登录 | 企业邮箱        备案号:蜀ICP备20024039号-1 版权所有 ? 2020-2021 四川凯发k8天生赢家一触即发工程建设咨询集团有限公司